Rejestracja na forum została wyłączona. Obecnie forum pełni rolę archiwum wiedzy zebranej na przestrzeni lat.
Awatar użytkownika
BliG
Posty: 1067
Rejestracja: 2007-07-16, 09:55
Lokalizacja: Małopolska
Kontakt: Strona WWW

Sprawdzenie modulu zamka centralnego

2008-02-06, 13:23

Witam,
moze to bedzie dla Was trywialne pytanie, ale ja nie chce zrobic jakiegos zwarcia i miec wiecej szkod niz moze byc zysku...

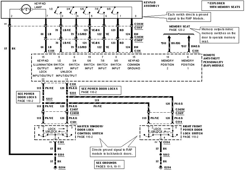
A wiec, mam taki schemat modulu sterowania zamkiem centralnym, jak dolaczylem do posta.

Pytanie moje jest takie: czy moge odpiac (lub przeciac) kabelki na pozycjach 22 (PK/YE - pink/yellow - rozowo/zolty) oraz 11 (PK/LG - zdaje mi sie: pink/light-green - rozowo/jasnozolty) i do tych stykow przylozyc mase ("zmasowac" te styki)?
Wtedy powinien zamek centralny sie zamknac/otworzyc?
Meczy mnie troche juz zamykanie auta "recznie" :roll:
Załączniki
c_l.jpg
c_l.jpg (90.8 KiB) Przejrzano 5853 razy
Pozdrawiam,
Adrian

Mikado
Posty: 990
Rejestracja: 2007-07-10, 20:31
Lokalizacja: Polska

Re: Sprawdzenie modulu zamka centralnego

2008-02-06, 18:08

NIE! masę możesz podać tylko na jeden równocześnie, bo jeśli dasz na dwa to układ będzie chciał i otworzyć i zamknąć drzwi naraz....

jeśli chcesz sterować centralny kluczykiem wystarczy zmienić (wstawić) mastera od strony kierowcy i podłączyć do punktów 22 i 11 (bez rozcinania)
tak samo może w te punkty wpiąć centralkę...

Awatar użytkownika
BliG
Posty: 1067
Rejestracja: 2007-07-16, 09:55
Lokalizacja: Małopolska
Kontakt: Strona WWW

Re: Sprawdzenie modulu zamka centralnego

2008-02-06, 20:39

Oczywiscie chodzilo mi o chwilowe podanie masy na jeden z nich (zeby sprawdzic czy centralka dziala prawidlowo i wtedy dopiero szukac problemu w jedym z trzech przyciskow oraz zamkach).

Nie wiem czy zrozumialem druga czesc Twojej wypowiedzi; chodzi Ci, zeby wstawic silownik zamka centralnego 'master'?
A pod pojeciem "centralkę" rozumiesz centralke uniwersalnego zamka centralnego lub alarmu?
Pozdrawiam,
Adrian

Awatar użytkownika
adr78
Posty: 115
Rejestracja: 2007-07-13, 13:20
Lokalizacja: Białystok/Morze

Re: Sprawdzenie modulu zamka centralnego

2008-02-06, 20:55

Mialem podobny problem z zamkiem centralnym.
Explo sie otwieral, ale nie chcial sie zamknac (z przycisku)

Dlugo szukalem przyczyny, ale i tak skonczylo sie prowizorka.
Sprawdzilem wlaczniki w drzwiach- byly ok
Centralka sterujaca (ta w bagazniku) - ok
Silowniki - rowniez ok

Wyciagnalem wazke przewodow idaca przy prawym progu.
W okolicach srodkowego slupka odnalazlem przewod (nie pamietam juz koloru) wychodzacy od pinu przelaczika DOOR LOCK (impuls nazamkniecie)
Przed slupkiem byl na nim impuls, natomiast za slupkiem juz go nie bylo.
Problem polegal jednak na tym ze wspomniany przewod wchodzil pod podloge (przypuszczam ze dochodzil do urzadzenia obslugujacego zdalne sterowanie) i wychodzil przy tym samym slupku.
Nie chcialo mi siewyciagac calej tapicerki, odkrecac foteli itd, dlatego zrobilem w tym miejscu "mostek".
Zamek dziala, ale do tej pory nie daje mi to spokoju. Zastanawiam sie w ktorym miejscu moglo nastpaic rozlaczenie.

ps
u mnie jest to model wyprodukowany pod koniec roku 1997, dlatego schematy i czesci dobieram jak do modelu 1998
Ostatnio zmieniony 2008-02-06, 20:56 przez adr78, łącznie zmieniany 1 raz.

Awatar użytkownika
BliG
Posty: 1067
Rejestracja: 2007-07-16, 09:55
Lokalizacja: Małopolska
Kontakt: Strona WWW

Re: Sprawdzenie modulu zamka centralnego

2008-02-06, 21:04

Dzieki!
Nie wiedzialem ze przez brak polaczenia z jednym przelacznikiem moze skutkowac niedzialaniem calego zamka centralnego :eek:
Jutro, jesli bedzie sensowna pogoda i znajde chwile czasu to moze tez to sprawdze...
Pozdrawiam,
Adrian

Awatar użytkownika
fotomysz
Posty: 2359
Rejestracja: 2007-11-04, 11:32
Lokalizacja: Łódź
Kontakt: Strona WWW

Re: Sprawdzenie modulu zamka centralnego

2008-02-07, 22:26

a no dzięki panowie, u mnie jest tak jak piszeadr78, i nie miałem ochoty szukać, ale teraz już wiem gdzie szukać :)
Explorer '99 4.0L V6 + LPG, zawiecha +2" up .......... na razie :P
SHREK '09 4.0 V6 OHV :D
Stworzyłem POTWORA ;P
Miał być jeszce Sport ale się nie udalo :P więc jest SHREK

Awatar użytkownika
BliG
Posty: 1067
Rejestracja: 2007-07-16, 09:55
Lokalizacja: Małopolska
Kontakt: Strona WWW

Re: Sprawdzenie modulu zamka centralnego

2008-02-08, 15:08

U mnie sprawa wyglada tak:
na pinach 11 i 22 (otwieranie i zamykanie) w RAPie, w stanie 'spoczynku', mam napiecie ~12V.
Po kliknieciu przycisku otwarcia w bagazniku na pinie 11 nastepuje chwilowy spadek napiecia do 0V (na 22 nic sie nie dzieje).
Po kliknieciu przycisku zamkniecia w bagazniku nic sie nie dzieje.

Ponawiam pytanie; czy moge przylozyc mase do przewodu z napieciem wchodzacego do 22 pinu? Skoro jest tam napiecie ~12V to przeciez zrobi sie zwarcie :hmm: ale z kolei przycisk otwierania chyba robi to samo... :scratch:
Pozdrawiam,
Adrian

manius

Re: Sprawdzenie modulu zamka centralnego

2008-02-08, 15:31

teoretycznie tak

troszke dokladnieszy schemat
Załączniki
zv2.pdf
(1008.91 KiB) Pobrany 362 razy
zv.pdf
(1.13 MiB) Pobrany 418 razy
tutaj.gif
tutaj.gif (23.87 KiB) Przejrzano 5776 razy

Awatar użytkownika
BliG
Posty: 1067
Rejestracja: 2007-07-16, 09:55
Lokalizacja: Małopolska
Kontakt: Strona WWW

Re: Sprawdzenie modulu zamka centralnego

2008-02-08, 18:05

Dzieki manius!
Zaraz przegladne, tylko opisze co i jak w moim egzemplarzu wyglada, coby nie zapomniec...

A wiec tak...
- zarowno w lewym, jak i prawym progu sprawa wyglada OK; w stanie spoczynku napiecie skacze (miernik nie wyswietla napiecia, bo skoki maja duza czestotliwosc, ale na bargrafie widac je bardzo dobrze, skoki sa rzedu kilku V [tyle miernik nadaza mierzyc, ale nie jest on jakis super, tylko taki zwykly]), natomiast po nacisnieciu przycisku "Lock" napiecie utrzymuje sie w okolicach 0V (kilkadziesiat milivoltow, wiec tyle co blad pomiaru).
- po zmierzeniu napiecia na pinach 11 i 22 modulu "RAP" (sterowania zamkiem centralnym; w bagazniku po lewej stronie) napiecie na pinie 11 (otwieranie) wynosi 12.6V, a na pinie 22 (zamykanie) wynosi 10V - obna maja bardzo male skoki, praktycznie mozna je pominac.
Napiecie na pinie 11 (otwieranie) spada do zera po nacisnieciu obojetne ktorego 'otwieracza' zamka, natomiast napiecie na pinie 22 (zamykanie) spada o kila(nascie) setnych Volta [praktycznie niezauwazalnie, moze nawet w granicach bledu pomiaru]...
- po zlozeniu tylnego miejsca, za fotelem kierowcy, znalazlem pod nim wiazke przewodow, a tam idacy kabel do "RAP'a", na nim utrzymuje sie stale napiecie 10V (pomiary identyczne jak na pinie 22 na RAPie)

Ktos ma pomysl co z tym fantem zrobic?
Bo mi sie nasuwa niezliczona ilosc pytan; gdzie jest polaczenie prawej i lewej strony? Czy jest tam jakis sumator napiecia, a napiecia sa tak dobrane w fazie, zeby sygnal wyjsciowy byl stale utrzymywany na poziomie 10V? bo skad bierze sie stale napiecie 10V, skoro na dwoch kablach (prawa i lewa strona) jest napiecie pulsujace?
A moze po prostu zrobic "mostki" tak jak pisal adr78 (z lewej i prawej strony doprowadzic przewod do tego miejsca pod tylnym fotelem? Tylko czy wtedy wszystko bedzie OK? (nie bedzie zwarcia?)
A moze gdzies jest zwarcie do +12V, i dlatego na RAPie jest 10V?

Zakrecilem sie :S :faint:
Pozdrawiam,
Adrian

manius

Re: Sprawdzenie modulu zamka centralnego

2008-02-08, 20:13

spokojnie nie zakrecaj sie
nie taki diabel straszny
te niby wahania napiecia nie maja zadnego znaczenia
10V wychodzi bo mierzysz przekaznik(cewke) K129/130

sam system jak widzisz na rys. jest b.prosty
masz
3xwlaczniki
3xprzekazniki
5xservosilniczkow

troche cierpliwosci musisz wlozyc,
i po kolei sprawdzac
zaczal bym wpierw od wlacznikow przekaznikow a potem servo
jesli wszystko jest ok
to kable
wystarczy ze gdzies nie ma (+) albo masy

arniz

Re: Sprawdzenie modulu zamka centralnego

2008-03-31, 16:22

Witam mam podobny problem i mam pytanie do BLIG-a czy to cpisał adr78 pomogło czy nalezy szukać gdzie indziej

Awatar użytkownika
BliG
Posty: 1067
Rejestracja: 2007-07-16, 09:55
Lokalizacja: Małopolska
Kontakt: Strona WWW

Re: Sprawdzenie modulu zamka centralnego

2008-03-31, 18:40

arniz, u mnie takze skonczylo sie prowizorka, ale troche inna niz u adr78;
ja zrobilem mostek od modulu sterowania bezprzewodowego do przekaznika sluzacego do zamykania zamkow.
Centralny zamyka sie pilotem :-)
Pozdrawiam,
Adrian

Shellby

centralny zamek

2008-12-07, 23:16

Witam.
Stary temat, ale dla mnie aktualny - niestety.
Właśnie mój centralny zamek w EXP II 98 ,się otwiera a nie zamyka.
Jeszcze nie grzebałem, ale chciałbym się przygotować, więc proszę o podanie lokalizacji modułu, przekaźnika i ew. innych urządzeń powiązanych.
Posiadam książkę, ale niestety uboga w schematy"CHILTON"
POZDRAWIAM

arniz

Re: Sprawdzenie modulu zamka centralnego

2008-12-08, 19:37

Witam prowizorkę poprawiłem u mnie okazało się że przy tylnych lewych drzwiach pod listwą w samym rogu była skrętka fabryczna która się utleniła i trzeba było od nowa ją poprawić i tera działa jak ta lala :)

Owidius
Posty: 16
Rejestracja: 2012-06-21, 20:35
Lokalizacja: PODDĘBICE

moduł centranego

2012-10-20, 13:44

Witam

Walczę cały czas z nie działającymi pilotami. Chyba najsensowniejszym rozwiązaniem jest założenie nowego sterownika do zdalnego otwierania. Więc nabyłem takie cudo i zaczynają się schody: podłączenie w drzwiach kierowcy zero - czarny gruby, otwieranie - różowo zielony i zamykanie - różowo pomarańczowy, wyzwalanie z pilota działa otwiera i zamyka bardzo ładnie tylko jest problem z tym ze nie rozbraja alarmu, zamykam, alarm uzbraja się po naciśnięciu zamknij. Po naciśnięciu na pilocie otwórz otwiera ale nie rozbraja, czy należy gdzieś coś zmostkować? W kostce sa jeszcze 2 przewody cienki czarny i czerwony z czarnym.

Wróć do „WARSZTAT”