Rejestracja na forum została wyłączona. Obecnie forum pełni rolę archiwum wiedzy zebranej na przestrzeni lat.
pit35

Schemat ABS do III

2009-05-24, 17:46

Może ktoś ma schemat elektryczny do ExpIII 2003 . Walneło mi cosik i pali się ABS - powiedzieli mi że sygnał nie dochodzi do pompy ABS-u. Mam takiego sprytnego elektryka który robi rózne wynalazki , amerykany itd ale mówi że jak bym miał schemat elektryczny to bym mu zaoszczedził 90% roboty. I stad moje pytanko- Czy jakiś Życzliwy sie znajdzie??

Awatar użytkownika
Przemex
Posty: 81
Rejestracja: 2009-03-03, 20:35
Lokalizacja: Łódź

Re: Schemat ABS do III

2009-05-24, 18:14

Jak byś podał co to za exik to mogę ci wrzucić obrazki z alldaty.

1/explorer zwykły czy sport trac ?
2/2wd/4wd/awd ?
3/jaka literka w VIN'ie E/K/W ?
4/ z IVD czy bez ?
5/więcej grzechów nie pamiętam - podać powyższe dane, dostaniesz obrazki :)

pit35

Re: Schemat ABS do III

2009-05-25, 01:46

Przemex byłbym wdzieczny za pomoc i już Ci mówię zwykły nawet jego zdjecie jest jako pierwsze w na stronie EPC jak wejdziesz ,, o klubie EPC"( to tak na marginesie) 4wd w vinie literka K a z punktem 4 Twojego pytania,,IVD" wykażę sie ciemnogrodem i zacofaniem bo nie wiem co to za wynalazek ten ,,IVD"

Awatar użytkownika
Przemex
Posty: 81
Rejestracja: 2009-03-03, 20:35
Lokalizacja: Łódź

Re: Schemat ABS do III

2009-05-25, 11:20

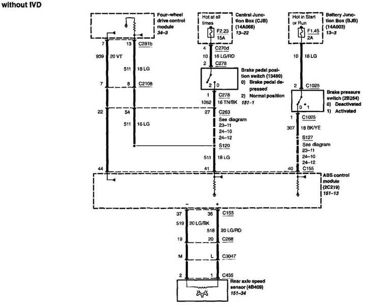
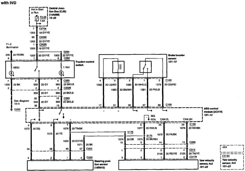
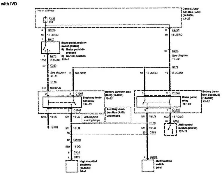
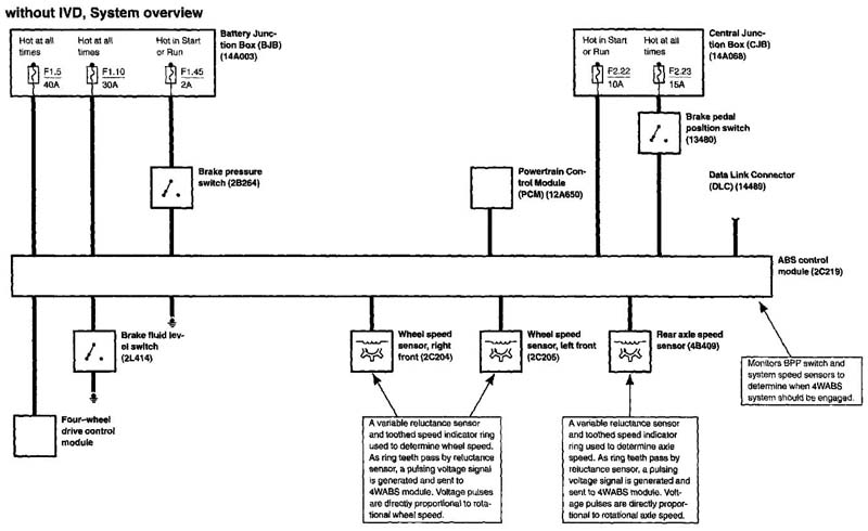
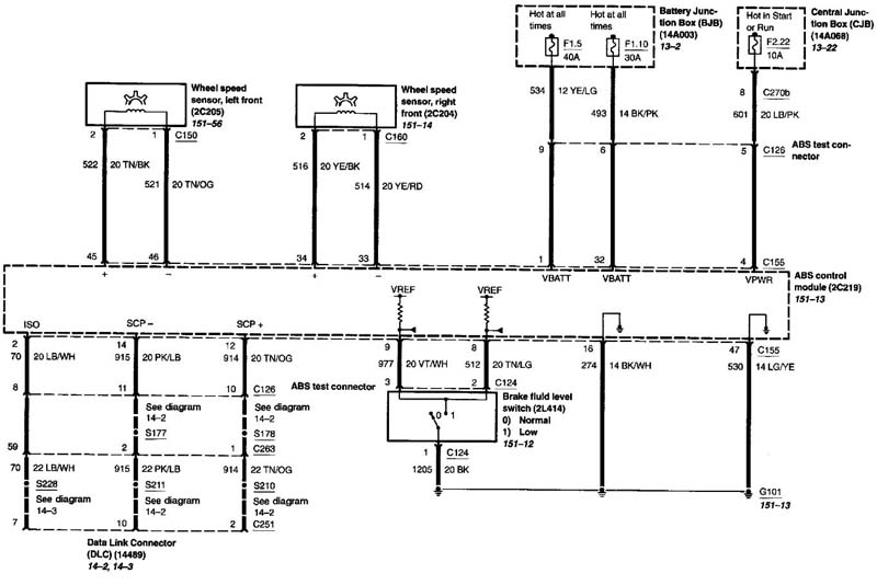
IVD to fordowska nazwa kontroli trakcji.

Wklejam obrazki z ivd i bez.
Załączniki
Bez nazwy 7.jpg
Bez nazwy 7.jpg (77.12 KiB) Przejrzano 3348 razy
Bez nazwy 6.jpg
Bez nazwy 6.jpg (95.73 KiB) Przejrzano 3348 razy
Bez nazwy 5.jpg
Bez nazwy 5.jpg (82.24 KiB) Przejrzano 3348 razy
Bez nazwy 4.jpg
Bez nazwy 4.jpg (69.83 KiB) Przejrzano 3348 razy
Bez nazwy 3.jpg
Bez nazwy 3.jpg (89.2 KiB) Przejrzano 3348 razy
Bez nazwy 1.jpg
1
Bez nazwy 1.jpg (81.15 KiB) Przejrzano 3348 razy
Bez nazwy 2.jpg
Bez nazwy 2.jpg (89.36 KiB) Przejrzano 3348 razy

pit35

Re: Schemat ABS do III

2009-05-25, 14:13

Dzieki . JEsteś Wielki:))

Wróć do „SKRZYNIE AUTOMATYCZNE ASB”